Ansicht Straßenfront
.jpg)
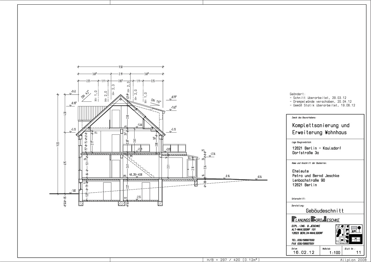
Komplettsanierung und Erweiterung des Wohnhauses Dorfstr. 3A in Kaulsdorf
Bei dem Gebäude handelte es sich ursprünglich um ein 5-achsiges unterkellertes Büdnerhaus aus dem Ende des 19. Jahrhunderts. Das Gebäude wurde um 1933 umgebaut, erhielt eine Treppe, wurde mit einem Zwerchgiebel an der straßenseitigen Fassade versehen und war seit Anfang der Achtziger Jahre dem Verfall preisgegeben. Es war baulich in einem schlechten Zustand, sodass der Keller unterfangen und die Kappendecke mit dem alten Material wieder aufgebaut werden musste.
Das Wohnhaus befindet sich im Denkmalschutzbereich Angerdorf Kaulsdorf im Geltungsbereich des Bebauungsplanes XXIII-32a, selbst ist es kein Einzeldenkmal, der Keller war jedoch zu erhalten, und die Gebäudekubatur und das Erscheinungsbild sollen sich dem Dorfcharakter anpassen.
Der Gebäudestandort, die Gebäudegrundfläche und die Eingangslösungen wurden nicht verändert, alle verwendungsfähigen historischen Materialien wie schmiedeeiserne Fenstergitter im Kellergeschoss, ein altes Türelement, eine Konsole, alte Mauerziegel usw. wurden saniert und werden wieder eingebaut. Es wurde die typische 5-Teilung der Straßenfassade wieder aufgenommen, die Eingänge zu allen Wohnungen und zum Keller erfolgen weiterhin von der Gebäuderückseite aus.
Das 42 Grad geneigte Satteldach wurde durch Erhöhung der Drempel im Obergeschoss angehoben, sodass 2 Vollgeschosse und im Dachraum Aufenthaltsräume entstanden. Das Dachgeschoss ist kein Vollgeschoss. Rückwärtig wurden ein großer Balkon und 2 Wintergärten angebaut.
Insgesamt hat das Gebäude 3 Wohnungen.
Die Wohnungen im Erdgeschoss wurden barrierefrei erschlossen und altengerecht umgebaut, wobei Grundrissveränderungen zum Ursprungsbestand vorgenommen wurden. Die alten Schonsteine und Öfen wurden demontiert.
Die Wohnungen sind schwellenlos, jede Innentür hat eine lichte Breite größer 80 cm. Die Bäder sind mit bodengleichen Duschen und spezieller Sanitärkeramik, Haltegriffen, Spezialarmaturen ausgestattet.
Im Ober- und Dachgeschoss entstand eine große Maisonettewohnung mit Balkonterrasse.
Das Gebäude ist ein Mauerwerksbau, Auf das 30 cm starke Porotonmauerwerk wurde eine 10 cm starke Wärmedämmung (WLG 35) aufgebracht. Das Pfettendach ist eine Holzkonstruktion. Zwischen den Sparren wurden 22 cm mineralische Dämmung eingebracht. Die Kellerdecke ist zwischen den Kappensegmenten und im Fußboden gedämmt.
Fenster und Türen folgen denkmalpflegerischen Forderungen, es wurden Holzfenster mit Zweischeibenisolierglas und echten Flügelteilungen und Oberlichtern eingebaut.
Gleiches gilt für die Außentüren.
Das Gebäude ist ein Niedrigenergiehaus, ein Energiepass leigt vor.
Die Wintergärten bestehen aus hochgedämmten Aluminiumprofilen.
Anstelle der Einzelöfen wurde eine hocheffiziente Luft-Wasser-Wärmepumpe mit Pufferspeicher zur Heizung und Warmwasserbereitung sowie eine Fußbodenheizung eingebaut. Im Erdgeschoss und Obergeschoss werden die Fußböden aus harten Baustoffen errichtet. Im Dachgeschoss werden Holzdielen verwandt.
Die beiden Erdgeschosswohnungen erhalten Terrassen.
Die Putzfassade aus mineralischem Putz erhält einen zweifarbigen Anstrich, Fensterfaschen und fassadengliedernde Gesimse.
Auf dem Grundstück können 3 Stellplätze errichtet werden, sofern Bedarf besteht.
Detaillierte Informationen zu den einzelnen Wohnungen erhalten sie unter Vermietung.
Bernd Jeschke
Dipl. Ing. Arch.
 
 

|